La nage à contre-courant JetStream Puro UWE vous permet de pratiquer la nage libre dans votre piscine. Elle est plutôt destinée aux personnes ayant un bon niveau de nage avec son débit allant de 54 à 75 m3/h en fonction du modèle choisi.
JetStream Puro dispose de la technologie FLAT. C'est à dire que cette nage à contre-courant génère un flux plat et régulier. Résultat = Moins de remous qu'avec une nage à contre-courant classique. Ce qui est plus confortable.
La nage à contre-courant Puro de marque UWE est disponible en 2 versions :
S'adapte à tous les types de bassins. Commande Piezo (7 m ou 20 m à la demande). Façade plate en inox 316 TI électro poli miroir.
Besoin d'une façade monobloc ? Découvrez la NCC JetStream Puro Compact.
Les dispositifs JetStream Puro 1 et Puro 2 s'adresse à des personnes disposant déjà d'un bon niveau de nage. En effet, le débit d'eau est relativement élevé, entre 54 m3/h et 75 m3/h en fonction du modèle désiré. Pour encore plus de débit et un entraînement ultra sportif, voire d'athlète, dirigez-vous vers le modèle de nage à contre-courant JetStream TriVa également disponible dans notre boutique.
De plus, JetStream Puro utilise la technologie FLAT permettant de générer beaucoup moins de remous par rapport aux nages à contre-courant traditionnelles. C'est parce que la technologie FLAT crée un flux plat particulièrement stable.
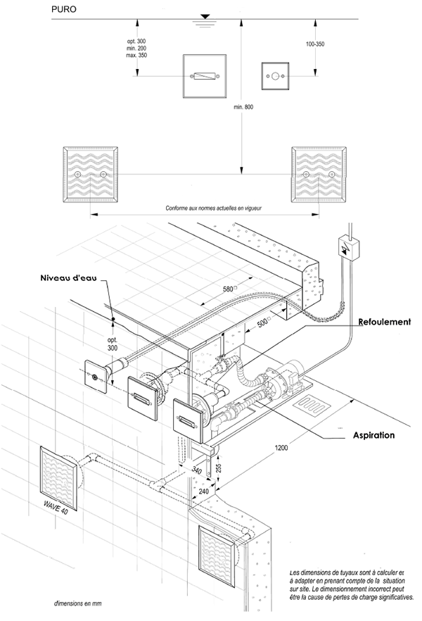
Notez que la NCC Puro dispose d'un faible encombrement et s'adapte à tous les types de piscines.
Il faut reconnaître que les produits de la marque UWE sont particulièrement qualitatifs en matière de performances comme d'esthétisme. Les nages à contre-courant JetStream Puro 1 et Puro 2 n'échappent pas à la règle.
La façade Puro revêt un design épuré, parfaitement inscrit dans l'air du temps avec sa finition inox 316 TI électro poli miroir.

En option : Kit étanchéité pour liner, PVC armé ou coque polyester, pompe auto-amorçante, pièces à sceller en inox 316 TI, pièces à sceller en version courte.
