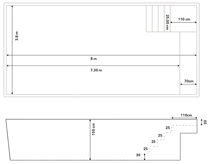
La piscine coque 8 x 3,80 m Divana by Belora offre un espace de baignade optimal avec sa surface de 30 m2 tout en arborant un style moderne et épuré avec sa plage immergée et son escalier latéral anti-dérapant.
Cette piscine coque rectangulaire à fond plat profonde de 1,50 m se décline en trois nuances élégantes :
Côté structure, c'est du solide. La coque Divana présente un revêtement gelcoat suivi de 3 couches de résine renforcée à la fibre de verre, l'une de ces résines étant du vinylester. Le fond, l'escalier et la plage immergée disposent également d'une plaque en nid d'abeilles pour davantage de rigidité. Ainsi, Divana résiste très bien aux rayures, aux UV, aux mouvements du sol, etc.
La piscine coque 8 x 3,80 m Divana inclut les pièces à sceller de coloris assortis : skimmers miroir, bonde de fond murale, buses de refoulement et prise balai. En option, profitez d’un éclairage LED (blanc ou couleur) avec télécommande pour illuminer vos soirées.
Fabriquée en Belgique, la coque bénéficie d’une garantie de 10 ans.
*Ci-dessous, prix de vente hors frais de port. Tarif du transport selon département et accessibilité.
| Caractéristiques | Piscine coque Divana |
|---|---|
| Type de piscine | Coque |
| Couche 1 | Gelcoat |
| Couche 2 | Mat de fibre de verre 150 g/m2 + résine vinylester |
| Couche 3 | Mat de fibre de verre 450 g/m2 + résine isophtalique |
| Couche 4 | Complexe de verre + résine isophtalique |
| Fond renforcé | Structure en nid d'abeilles |
| Dimensions piscine | L 8,00 x l 3,80 x h 1,50 m |
| Forme | Rectangulaire |
| Fond | Plat |
| Spécificités | Escalier anti-dérapant moderne et banc immergé |
| Niveau d'eau | 1,45 m |
| Volume d'eau | 40 m3 |
| Plan d'eau | 30 m2 |
| Poids | 800 kg |
| Coloris de la coque | Blanc, beige ou gris |
| Skimmers miroir | 2 |
| Bonde de fond murale | 1 |
| Buses de refoulement | 3 |
| Prise balai | 1 |
| Projecteurs | En option, spots LED blanc ou couleur avec télécommande |
| Quantité de remblai à prévoir (environ) | 34 tonnes |
| Garantie coque | 10 ans |


Avec une profondeur de 1,50 m et des dimensions de 8 x 3,80 m, cette piscine coque vinylester se décline en trois teintes pour personnaliser votre espace de baignade.

Le procédé de fabrication des piscines Belora permet d'obtenir des coques d'une grande qualité. Ce processus inclut diverses couches de résines renforcées à la fibre de verre :

Le fond du bassin, l'escalier et la banquette immergée se voient octroyer en plus une plaque en nid d'abeilles pour encore plus de rigidité. Ainsi, la piscine 8 x 3,80 m Divana résiste mieux que les coques traditionnelles :
Bref, votre piscine coque vinylester Divana vous allez la garder longtemps grâce à cette grande résistance conférant une durée de vie exceptionnelle au bassin.
La piscine 8 x 3,60 m Divana intègre deux skimmers miroir, une solution esthétique qui rehausse le niveau d’eau à environ 5 cm des margelles pour un effet piscine miroir des plus élégants. Ces quelques centimètres font vraiment toute la différence d'un point de vue esthétique mais aussi en matière d'immersion du corps dans l'eau lors de la baignade.

Ces skimmers miroir sont équipés d’un volet anti-retour et d’un panier facilitant l’entretien tout en protégeant le système de filtration. Skimmers conçus par Astralpool, une garantie de fiabilité et d'efficacité.
Ajoutez une touche magique à vos soirées avec deux projecteurs LED (blanc ou couleur) optionnels. Comme les pièces à sceller, ces spots sont assortis au coloris de votre piscine (blanc, beige ou gris).

Le kit inclut également une commande à distance pour un usage facile et pratique au quotidien.